


用途
该机主要应用于制药工业固体物料的输送、加料。可与混合机、压片机、胶囊充填机等设备配套使用。同时在制药、化工、食品等行业中广泛使用。原理
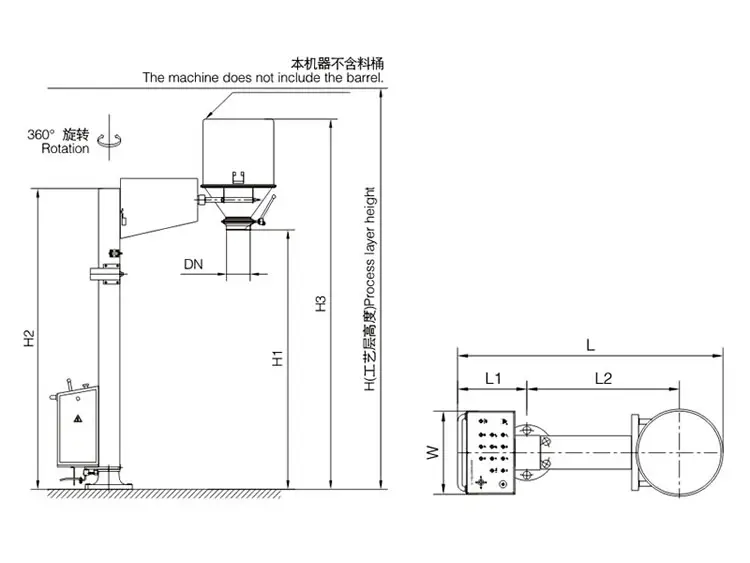
该机主要由底盘、立柱、提升系统、翻转系统等组成。工作时,先将锥斗与料桶扣合,然后启动提升按钮,料桶提升;启动翻转按钮,料桶即可翻转180°。旋转立柱与加料的设备密闭对接,开启出料蝶阀,使物料密闭转移到下一工序。特点
该机是我公司广泛吸收、消化国外先进技术,结合国情研发成功的新机型。结构合理,性能稳定,操作方便,整机无死角,无外露螺钉。该机设有防误操作装置的出料蝶阀,拆卸方便,易于清洗,确保生产安全,并能有效地控制粉尘与交叉污染,优化了生产工艺。符合药品生产的GMP要求。技术参数
