


用途
该机主要应用于制药工业固体物料的输送、加料。可与混合机、压片机、胶囊充填机等设备配套使用。同时在制药、化工、食品等行业中广泛使用。原理
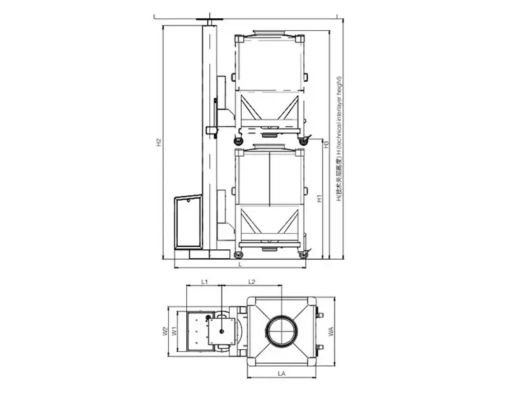
该机主要由底盘、立柱、提升系统等部件组成。工作时,先将装有物料的料斗推入料斗提升机的提升叉架上,然后启动提升按钮,料斗做提升运动,料斗到位后转动底盘与加料的设备密闭对接,开启出料蝶阀,使物料密闭转移到下一工序。特点
该机是我公司广泛吸收、消化国外先进技术,结合国情研发成功的新机型。结构合理,性能稳定,操作方便,整机无死角,无外露螺钉。该机易于清洗,有效地控制粉尘与交叉污染,优化了生产工艺,符合药品生产的GMP要求。技术参数
